| Kapacitet | t/h |
| Maksimalni kapacitet | t/h |
| Brzina | 0.4 m/s |
| Osno rastojanje pog.pov.bubnja | mm |
| Razmak izmedju strugaca | mm |
| Deo | Tip | Snaga | Broj crteza | Ostalo |
|---|---|---|---|---|
| Reduktor | KHA3-400S | 400 kW | ... | ... |
| Lancanik | A29x92 | prek.čvrsoća 85 t | ... | DIN 22252-2-26x92 170 karike |
Hod zatezanja : 200 mm
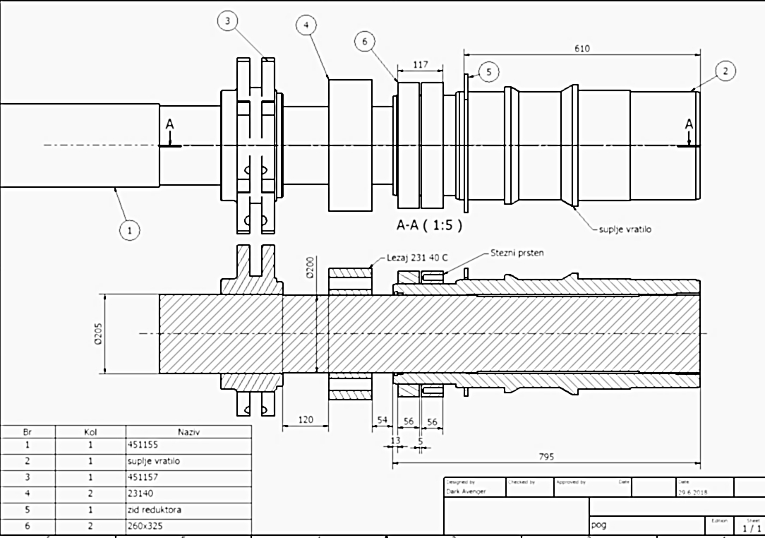
| Poz | SAP šifra | ID broj | Naziv | Broj crteža | Tehnički podaci |
|---|---|---|---|---|---|
| 1 | Pogonski slog | 451511 | podsklop | ||
| 2 | Pogonski vratilo | 451156 | Ø 222x4350 | ||
| 3 | Zvezda | 451157 | odlivak | ||
| 4 | Cev | 451158 | Cev Ø298.5x15x1575 | ||
| 5 | Distantna čaura | 451159 | cev Ø 241x24x125 | ||
| 6 | Distantna čaura | 451160 | cev Ø 241x24x85 | ||
| 7 | Poklopac | 451161 | Ø40x450x450 | ||
| 8 | Prsten | T-D-331 | Ø30x250x250 | ||
| 9 | 164713 | Kuciste lezaja 3140k | 338537 | odlivak | |
| 10 | 11260 | Lezaj | 231 40 MB | ||
| 11 | 11263 | Zaptivač 3148 k | T-D-340 | Guma 55 SHA | |
| 12 | 164714 | Učvrsni prsten | 335300/83 | Ø20x15x1046 | |
| 13 | 184715 | Zaptivka | 338524 | Ø1x430x430 | |
| 14 | 7771 | Vijak M20 | 947221 | ||
| 15 | 7021 | Vijak M16x40 | 911348 | ||
| 16 | 1084 | El podloška | A16 | ||
| 17 | 2468 | Vijak M8x25 | |||
| 18 | 11080 | El podloška | |||
| 19 | 11264 | Vijak M10x20 | |||
| 20 | 8263 | Mazalica M10x1 | |||
| 21 | 164716 | Poklopac | 338596 | 20x320x320 |
| Poz | SAP šifra | ID broj | Naziv | Broj crteža | Tehnički podaci |
|---|---|---|---|---|---|
| 1 | Pogonski slog | T-D-252-2 | 150/140x67 | ||
| 2 | Lezaj 240 28 C | SKF | 298.5x15 | ||
| 3 | Cev | ||||
| 4 | Lancanik | T-D-069 | |||
| 5 | Osovina | T-D-336-1 | 21x*2975 |